







ABOUT
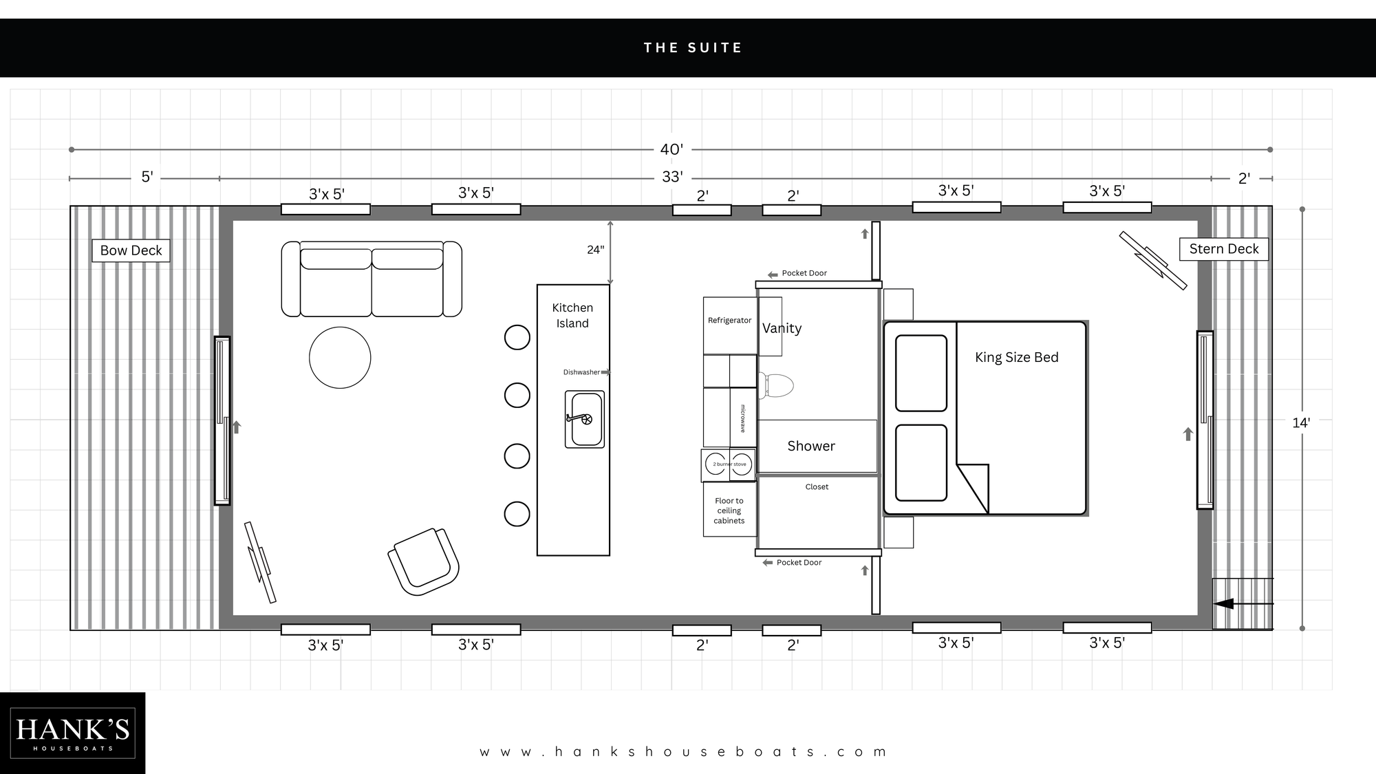
The Suite by Hank’s Houseboats is a spacious onebedroom, one-bathroom model that redefines what it means to live on the water. The Suite offers expansive comfort paired with the bespoke craftsmanship and luxury finishes that set Hank’s apart. From its open, airy floor plan to its thoughtful design details, this model is ideal for those who want the freedom of waterfront living without sacrificing space or style. Whether it’s your primary residence, a refined retreat, or a statement-making floating office, The Suite proves that houseboat living can be both indulgent and practical.

CALL
667-234-0401

VISIT
2015 Turkey Point Rd Essex, MD 21221

info@hankshouseboats.com

ADDITIONAL FEATURES
- LARGE BATH TUB
- CHOOSE YOUR FINISHES
- PADDLE BOARD RACK
- POWDER COATED ALUMINUM RAILING
- KING SIZE BED
ENGINE
- FUEL GASOLINE
- POWER 9.9 HP
- TYPE OUTBOARD
VISIT US:
2015 Turkey Point Road; Essex, Maryland 21221 | Hankshouseboats.com